HPG Logo HPG Logo text
HPG Logo HPG Logo text

How to Draw Elevations from Floor Plans

all four sides elevation drawings

This elevation drawing tutorial will show you how to draw elevation plans required by your local planning department for your new home design.

We will explain how to draft these drawings by hand. If you are using home design software, most programs have a tool to create the elevation plans from your design.

House elevation drawings are created after you have created your floor plan drawings. See our Make Your Own Blueprint tutorial for instructions on creating detailed floor plans. If you are just starting out with your home design, check out our free Home Design Tutorial.

Blueprints Book Image

Understanding and Drafting Blueprints
48 page book, Print or Digital

Learn More button

What are Elevation Plans and How are They Used?

draft elevation drawings

Once you have completed drawing your detailed floor plans, you'll still need to create a few more construction drawings. In addition to the floor plans, you will need to provide your builder and local planning department with elevation drawings and cross-section drawings.

The elevation plans are scaled drawings which show all four sides of the home with all perspective flattened. These plans are used to give the builder an overview of how the finished home will look and the types of exterior finishing materials. It will also provide information about the elevation of the ground on the various faces of the home. For the local planning department, they will need these drawings to insure that the local building code is being adhered to.

You will be creating four elevation views, one for each side of the house (regardless of whether your home is of a conventional shape or not). Usually these drawings are drawn to a scale of 1' : 1/4". Check with your builder and planning department as to what scale they prefer these drawings to be.

For each side of the house, elevation drawings should show:

  • Each wall length and its height,
  • The roof width and height,
  • The visible portion of the foundation,
  • Any exterior features (such as decks, porches and stairs),
  • Window and door trim,
  • Eavestroughs,
  • Exterior wall and roof finishings (e.g. wood siding on exterior walls, asphalt shingles on roof)
  • The finished ground level.

Materials Required

For a list of the required drafting materials see our page on drafting house construction drawings. Aside from a good straight edge, an architect's scale will be very useful.

Getting Started

floor plan with elevation

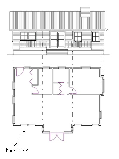
To draft your elevation plans, you will start with your floor plans for the main floor of your house. The easiest method is to draw your elevations to the same scale as your floor plans. To make the process a bit easier:

  • Tape your main floor plan drawing to the surface of your work table with the front side of the house facing towards you.
  • Tape the sheet of paper for your elevation drawing just below or above the floor plan.

With this method you will transfer each feature on the front face of the house to the other sheet of paper.

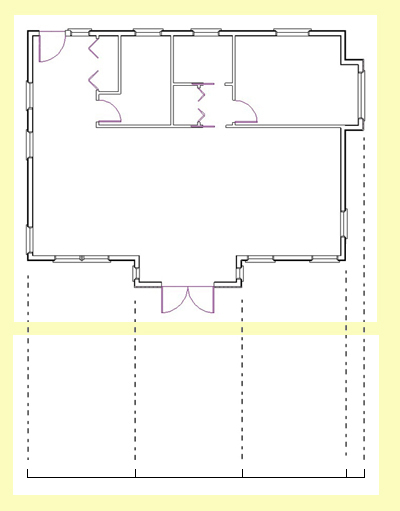
The drawing to the right shows a completed elevation drawing and the floor plan it was taken from. The dotted lines show places where the walls bump in or out.

Step by Step Guide to Drawing House Elevations

Drawing Main Floor Wall Baseline

floor plan with front wall

To draw the initial baseline for the main floor,

  1. Using your floor plan drawings and starting at the extreme left end of any walls on this side of the house on the ground floor, measure the horizontal distance of this wall. Make sure you are including the thickness of any siding material for the exterior side walls for this level. This siding can be very thin in the case of parging or thick in the case of stone or brick.
  2. Draw a faint line the same length of this wall towards the bottom left third of your page. This faint horizontal line will later be erased since it will not be visible from the outside of the house (unless the exterior finish of the house changes at this exact point). It is drawn now only as a reference from which to measure to the top of the next floor or roof line.
  3. Make a small upward tick mark at the end of this wall.
  4. If there is another exterior wall at the same elevation to the right of this wall (for example a wall that bumps out or recedes in from this first wall), measure this wall in the same way as the first.
  5. Draw this next line as a continuation of the first line. Do not erase the tick mark that indicates the division between these walls.
  6. Continue on marking walls in this way until you reach the end of walls on this side of the house.

Determining and Drawing Wall Heights

elevation front wall

Next you will draw the vertical lines for the exterior walls on this side. For each of the wall bases:

  1. Determine how high the wall will be above its unfinished floor height. To do this you will need to consider the height of the ceiling of the rooms within this section of the house and add to that the height of any floor or ceiling joists above it. Also add on the height of any sub-flooring, if there are floors above.
  2. Draw faint vertical lines up from each of the wall base lines to the height you have determined in the previous step. (Later you will draw a darker line which includes the finished material on the outside of the home.)
  3. Draw a faint horizontal line at the level of the upper ceiling joists or subfloor above this level.
  4. If there is another floor above this level, continue on to the step 5. Otherwise move on to the next section, Draw Window and Door Outlines.
  5. Using the floor plans for the next level up, perform steps 1 through 3 again making tick marks where you will need to draw any vertical walls. Once again determine the heights of these walls then draw a faint horizontal line to show the level of the top of the sub-flooring or ceiling joists for the next level.
  6. Continue repeating the above steps until you have no floors above the current level. Then move on to the next section, Draw Window and Door Outlines.

Draw Window and Door Outlines

elevation with windows and doors

For all of your windows and doors, measure from the horizontal lines of your floors to position the exterior doors and windows. Your construction drawings, usually the cross-sections, will detail the height at which each window should be placed. A separate window and door schedule gives the dimensions for all your windows and doors.

At this point, using your architect's scale for accuracy, draw just the outline of the window and door outside dimensions to the same scale as your walls, floors and roof. Later you will draw the exterior window and door trim.

Drawing the Roofs

The roof lines can be of many styles: gable, shed, hip, gambrel, etc.

To draw the roof for each elevation view, first consider whether your roof will overhang and drop below the exterior wall on the elevation plan you are currently drafting. For a shed or gable roof with eaves, the roof on two sides will drop lower than where it connects with the wall. From the view of the other two sides it will stay at one level. Take a look at the elevations at the very top of this page to see an illustration of this.

Dropping Roofs

elevation with roof

If this level has an overhanging roof that slopes down over the wall, you will need to do some calculations for roof overhang before you draw the horizontal line for the wall top.

If there is a roof overhang at this level which drops down over the wall, calculate how much the roof will drop in the actual overhang area. To do this,

  1. Take the slope or pitch of your roof, which is usually described as the rise over run in the form of 5:12, 6:12, 14:12, etc. The first number refers to how many inches (or centimetres) the roof will rise (or drop) over a horizontal distance indicated by the second number (which in North America is usually 12 inches).
  2. Take your horizontal roof overhang to determine what the vertical roof overhand drop will be. For instance if you have a 5:12 roof pitch and a 12 inch horizontal roof overhang, the roof will drop a total of 5 inches. If your horizontal roof overhang was 18 inches, the roof would drop 18/12 x 5 = 1.5 x 5 inches = 7.5 inches.
  3. Now you will need to subtract this drop from the height of the wall that you previously calculated since in the elevation drawing this roof line will drop below the top of the wall height. Using this new calculated height, draw the line showing the lower edge of the roof line.

Non-Dropping Roof Lines

For an end gable wall or a shed wall, determine the highest point of the wall below your roof. To do this you need to know the slope of the roof. First read the section above on roof pitch, then calculate the height of top most point of your roof above the current floor in the following way.

  1. Measure the horizontal distance from one of the side walls of the house in this elevation view to where the peak of the roof will be. For some houses this will be the center of the house, for other roof styles it may not be the center. We'll call this Distance to Peak.
  2. Then calculate Distance to Peak x Roof slope where roof slope is the rise/run. For example for a 5:12 roof slope and a distance of 13 feet the height for the peak of the roof (above the current floor) would be: 12 feet x 5 / 12 = 5 feet.
  3. Mark a tick on the floor surface to indicate the spot above which will lie the roof peak. Extend a faint vertical line up from this point.
  4. Measure up this line to the height you have just calculated above.
  5. Now join this roof peak to the outside edge of the house.
  6. If the roof slopes directly down to the other side of the house you can draw another line from the roof peak to the other edge of the house as well.

Next determine the thickness of your actual roof including all framing and the roof itself and draw this onto your elevation drawing.

Make sure that you have included all roofs that are visible from this house face. Notice in the elevation above, the small portion of shed roof which covers a bumpout on the right side is visible.

Basements, Foundations and Chimneys

elevation with foundation

Next add on the basement, crawl space or foundation. For the elevation views you need only show the parts of this level which are visible above ground. Other drawings, called cross-sections, will provide further building details for this part of the home.

For the lower level or foundation, first determine if the lower wall, without any finished surface such as siding or stucco, will protrude from the upper wall. Then consider what type of finishing will be on the foundation and what will be on the upper levels. For some homes the concrete foundation may have parging or stucco and the upper level(s) may have a different finishing. If the whole house will have the same finish type hopefully your home design is such that the lower foundation wall is flush to the upper wall(s). If not, now is the time to adjust your foundation plans so that they will be flush.

If the sidings will change, consider whether you want them flush, the finished foundation wall protruding, or inset. There is no correct way to do it but in general an inset foundation wall could give your home a somewhat unstable look. If you are building a traditional wood framed home you have a bit of latitude as to where on the thick foundation wall you will set the wood framing for the floor above. In this way you can decide exactly how your upper finished walls will or will not line up.

Once you have determined where the foundation wall will sit, draw a faint line from the main floor downwards to slightly below what you think will be your finished ground height.

Now you can also add any chimneys. As with the walls you have drawn, make sure that you include the thickness of any finishing materials that may be on the chimney, be it wood siding, brick or stone.

Detail Exterior Finishing

elevation with finishing
  1. If you will have wood or another type of siding (horizontal, vertical or cedar shake) draw these lines to indicate the finish. For a stucco wall you need not draw any surface. For a brick or stone wall, the finish should be drawn. Make sure you include any trim bands, belt lines, etc.
  2. Using your architect's scale, draft in all window and door trim as well as detail any window or door lites, and exterior knobs or handles.

Decks, Porches and Railings and Finished Ground Level

final elevation
  1. Now draw in any decks or porches, their railings and stairways. This can be fiddly work, especially drawing the railings. Use your scale to make sure your drawing is accurate.
  2. Then add on any other architectural features such as fascia, gutters or downspouts.
  3. Next do an accurate measurement of what you plan to have as the difference of your main floor height to the final level of the landscaping around the house. This may be fairly flat around the whole house or it may leave a portion of the basement or foundation completely above ground with another part almost completely buried.
  4. Draw this finished landscaping line along the walls of this elevation view.
  5. Finally, clearly label the drawing to indicate exact finishing materials to be used on exterior surfaces, this includes roofing materials and siding.

Repeat this process for the other three sides of the home.

As with the floor plan drawings, it is necessary to include a title block on the page which specifies the house name, the date, and the scale used. The title block is generally in one corner of the drawing.


Next House Construction Drawing Tutorial

Check out the next blueprint tutorial module: Drawing Cross Sections.

Check out our free House Design tutorial, from initial home planning to creating full construction drawings.

Go to our main Blueprints Page for links to how to read blueprints and reference pages with basic floor plan symbols used on construction drawings.

Return to Top of Page and Navigation Bar



Home | Privacy Policy



No part of this web site may be reproduced or copied without written permission. Illegal Internet copies will be detected by Copyscape.

Copyscape graphic